3/4A Daws Road, ASCOT PARK
overview
-
2P1903
-
Retail
-
Sold
-
805 sqm
-
805 sqm
Description
Commanding Main Road Frontage!
Fantastic Investment Opportunity High exposure site
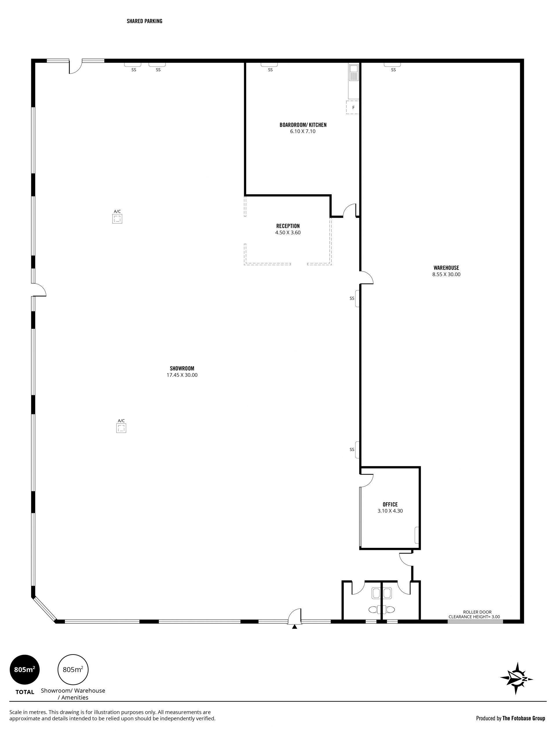
Perfectly and predominantly positioned showroom/warehouse located on the corner of Daws Road and Joy Street. A very generous offering of some 805m2.
This truly amazing property is light and bright and is presented in an excellent, well-maintained condition.
Well, suited to an investor looking to begin or expand their portfolio. This securely tenanted property boasts value and convenience with prime main road exposure.
Consisting of a huge open plan showroom, office accommodation, meeting room with kitchenette, female and male toilet facilities, and rear warehouse with a 3m high clearance roller door with access via Joy Street.
PROPERTY FEATURES:
Total lettable area of 805m2.
Spacious showroom with 3m high ceilings, 4 split systems air conditioners, 2 ceiling cartridge air conditioners, and alarm system.
Glassed walled office accommodation.
Large meeting room with kitchenette facilities.
Corner location with side access to the warehouse.
Strata titled with off street parking including disabled parking.
CURRENT TENANCY DETAILS:
Leased to: Aidacare Pty Ltd
Current Lease: 01/02/2022 31/01/2025
New Lease Extension: 01/02/2025 to 31/01/2030
Current Base Lease Rental: $73,191.36 pa + GST
New Base Rental: $76,484.97 + GST from 01/02/2025
Rent Reviews: Annually @ CPI
Outgoings: Tenant is responsible for 100% of Council, SA Water, ESL, and Strata.
OUTGOINGS:
Council Rates: $2343.45 per quarter
SA Water: $458.55 per quarter
Strata Admin: $3137.00 per quarter
Strata Sinking: $675.00 per quarter
ESL: $1904.40 per annum
For further information or to arrange an inspection, please contact Heath Lapthorne 0423 764 163.
TAPLIN GROUP OF COMPANIES - RLA 1836
#Taplin #TaplinGroup #WeAreRealEstate
Perfectly and predominantly positioned showroom/warehouse located on the corner of Daws Road and Joy Street. A very generous offering of some 805m2.
This truly amazing property is light and bright and is presented in an excellent, well-maintained condition.
Well, suited to an investor looking to begin or expand their portfolio. This securely tenanted property boasts value and convenience with prime main road exposure.
Consisting of a huge open plan showroom, office accommodation, meeting room with kitchenette, female and male toilet facilities, and rear warehouse with a 3m high clearance roller door with access via Joy Street.
PROPERTY FEATURES:
Total lettable area of 805m2.
Spacious showroom with 3m high ceilings, 4 split systems air conditioners, 2 ceiling cartridge air conditioners, and alarm system.
Glassed walled office accommodation.
Large meeting room with kitchenette facilities.
Corner location with side access to the warehouse.
Strata titled with off street parking including disabled parking.
CURRENT TENANCY DETAILS:
Leased to: Aidacare Pty Ltd
Current Lease: 01/02/2022 31/01/2025
New Lease Extension: 01/02/2025 to 31/01/2030
Current Base Lease Rental: $73,191.36 pa + GST
New Base Rental: $76,484.97 + GST from 01/02/2025
Rent Reviews: Annually @ CPI
Outgoings: Tenant is responsible for 100% of Council, SA Water, ESL, and Strata.
OUTGOINGS:
Council Rates: $2343.45 per quarter
SA Water: $458.55 per quarter
Strata Admin: $3137.00 per quarter
Strata Sinking: $675.00 per quarter
ESL: $1904.40 per annum
For further information or to arrange an inspection, please contact Heath Lapthorne 0423 764 163.
TAPLIN GROUP OF COMPANIES - RLA 1836
#Taplin #TaplinGroup #WeAreRealEstate
