2/4 Joy Street, ASCOT PARK
overview
-
2P1904
-
Industrial
-
Sold
-
561 sqm
-
561 sqm
Description
Dual Tenancy Offering! Outstanding Investment Opportunity!
Being sold as a going concern, this fully tenanted property is ideally located near the corner of Daws Road and Joy Street making access from any direction a breeze.
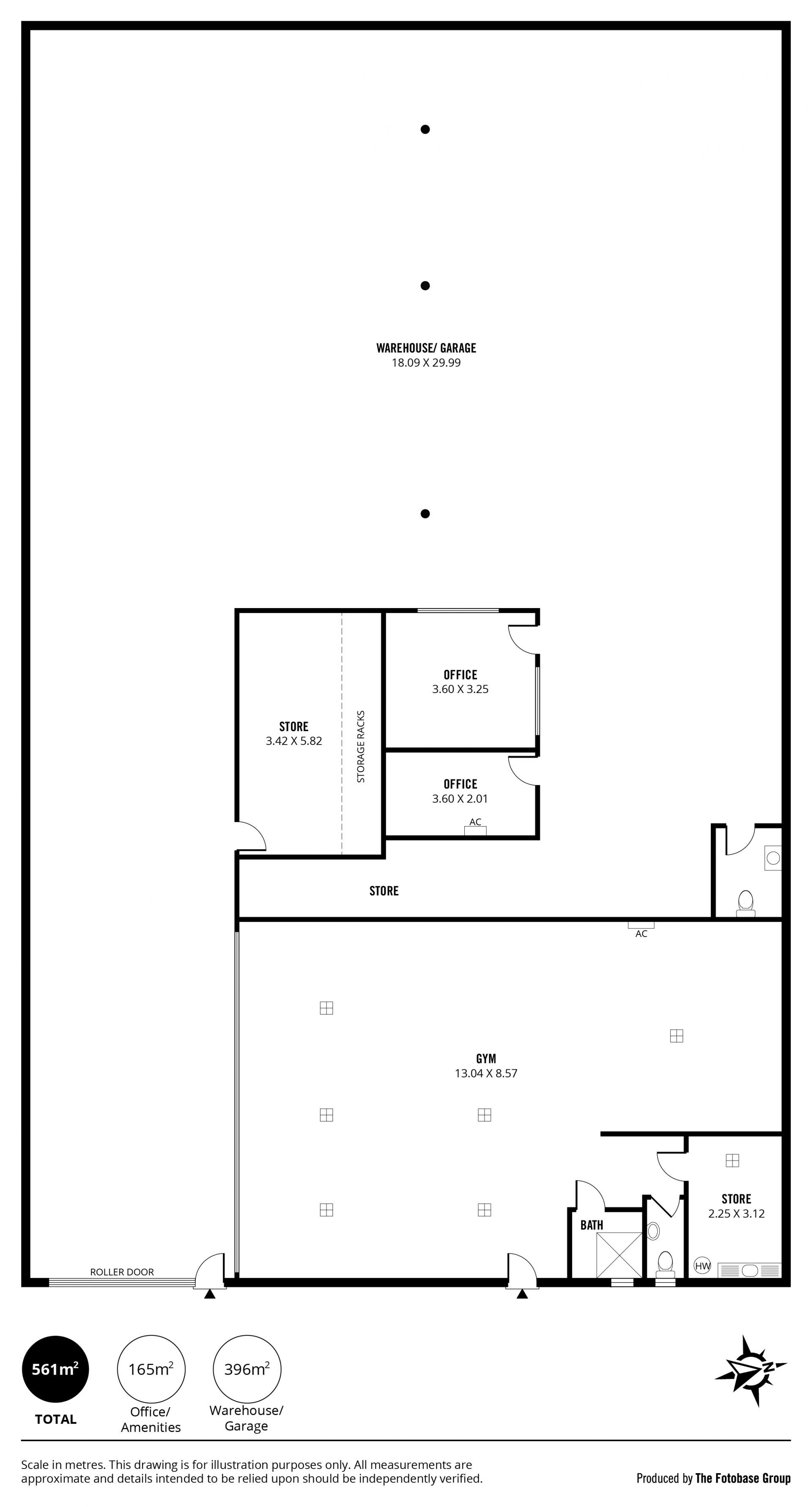
The twin tenancies occupy approximately 561m? of lettable space in total. The larger portion being the warehouse tenancy and the gym occupying the smaller.
TENANCY 1: The Warehouse. Offering high clearance roller door entrance access into the open plan warehouse space. 2 office areas, storeroom and bathroom amenities are also included.
Current Lease: 01/06/2024 31/05/2027 + 1 x 2-year option
Rental: $25,000 p.a plus GST + 75% of outgoings
TENANCY 2: Gym: Spacious open plan area, store room and bathroom amenities.
Current Lease: Periodic the current tenant has occupied this space for 26 years.
Rental: $12,000 p.a plus 25% of outgoings.
OUTGOINGS:
Council Rates: $730.00 per quarter
Strata Admin: $860.00 per quarter
Strata Sinking: $185.00 per quarter
SA Water: $197.06 per quuarter
ESL: $628.10 per annum
Dont miss out on the exceptional chance to secure this terrific strata titled property.
For further information or to arrange an inspection, please contact Heath Lapthorne on 0423 764 163
TAPLIN GROUP OF COMPANIES RLA 1836
#Taplin #TaplinGroup #Taplin Real Estate
The twin tenancies occupy approximately 561m? of lettable space in total. The larger portion being the warehouse tenancy and the gym occupying the smaller.
TENANCY 1: The Warehouse. Offering high clearance roller door entrance access into the open plan warehouse space. 2 office areas, storeroom and bathroom amenities are also included.
Current Lease: 01/06/2024 31/05/2027 + 1 x 2-year option
Rental: $25,000 p.a plus GST + 75% of outgoings
TENANCY 2: Gym: Spacious open plan area, store room and bathroom amenities.
Current Lease: Periodic the current tenant has occupied this space for 26 years.
Rental: $12,000 p.a plus 25% of outgoings.
OUTGOINGS:
Council Rates: $730.00 per quarter
Strata Admin: $860.00 per quarter
Strata Sinking: $185.00 per quarter
SA Water: $197.06 per quuarter
ESL: $628.10 per annum
Dont miss out on the exceptional chance to secure this terrific strata titled property.
For further information or to arrange an inspection, please contact Heath Lapthorne on 0423 764 163
TAPLIN GROUP OF COMPANIES RLA 1836
#Taplin #TaplinGroup #Taplin Real Estate
